Main image of Abigail, a home-design built by Red Clover Homes

Abigail

2 Stories

Home asking price icon

2372 Sq. Ft.

Home asking price icon

2.5 bath

Home asking price icon

3.0 bed

Image of Abigail Image of Abigail Image of Abigail Image of Abigail Image of Abigail Image of Abigail Image of Abigail Image of Abigail Image of Abigail Image of Abigail Image of Abigail

Floor plan

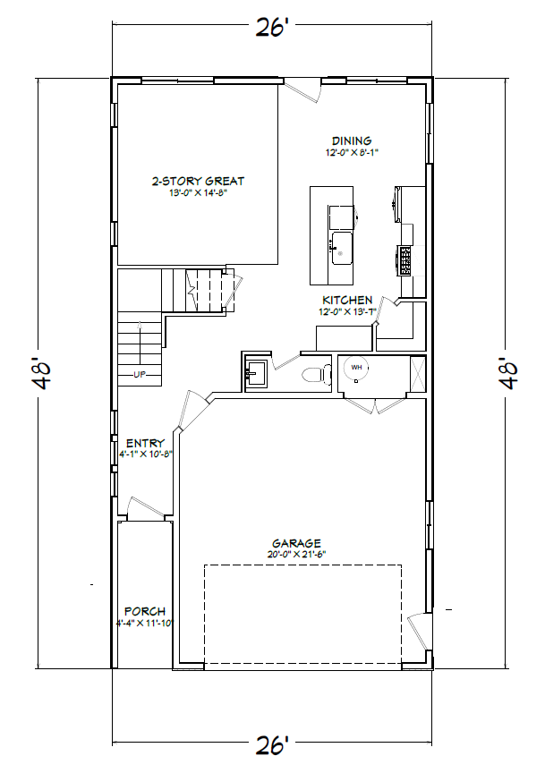
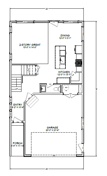
Main Floor – 738 sq. ft.

Home design preview image

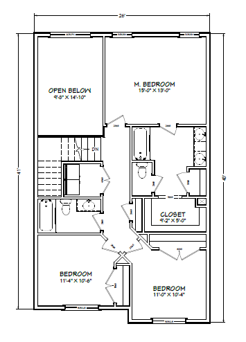
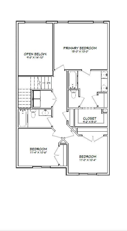
Upstairs – 895 sq. ft.

Home design preview image

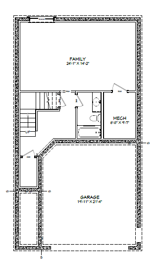
Basement – 738 sq. ft.

Home design preview image
Total home square footage icon

2372

Total

Sq. Ft.

Total home square footage icon

738

Main

Sq. Ft.

Total home square footage icon

3.0

Bed

Total home square footage icon

2.5

Bath

Home number of garages icon

2

Garage

About the Abigail

The Abigail floorplan perfectly balances open living and personal comfort, making it an ideal choice for families who want space, light, and thoughtful design. Step through the covered porch into a welcoming entryway that opens into the expansive two-story great room. Natural light pours in from large windows, creating a bright and airy atmosphere perfect for family gatherings and entertaining. The open layout flows seamlessly into the dining area and spacious kitchen, featuring a large island, generous cabinetry, and a walk-in pantry for extra storage. A conveniently located powder bath and laundry room are tucked just off the kitchen, providing practical everyday convenience. Upstairs, you'll find three bedrooms, including a luxurious primary suite with a private bathroom and walk-in closet. The two additional bedrooms share a full bath and are thoughtfully positioned to offer comfort and privacy. An open-to-below area enhances the sense of space, connecting the upper and lower levels visually and allowing natural light to filter throughout the home. This home also comes with a full, unfinished basement. When finished, the basement adds a large family room, a full bathroom, and storage. There is a spacious two-car garage with easy access to the main level. Call and start customizing your dream home today! About us – At Red Clover Homes we are a locally owned homebuilder based in Cache Valley, Utah, committed to crafting high-quality, energy-efficient homes with integrity, transparency, and care. Whether you're looking for a thoughtfully designed floor plan or a fully custom build, we guide you through every step of the process to ensure a smooth and rewarding experience. With a focus on lasting craftsmanship and community-minded design, our homes are built to reflect unique lifestyles and values of everyone. At Red Clover Homes, we don’t just build houses—we build homes designed for life.

Communities with this floor plan

Want to learn more about the Abigail?

Fill out this form and we'll reach out to you asap.