Main image of Jefferson, a home-design built by Red Clover Homes

Jefferson

Rambler

Home asking price icon

4165 Sq. Ft.

Home asking price icon

3.5 bath

Home asking price icon

6.0 bed

Image of Jefferson Image of Jefferson Image of Jefferson Image of Jefferson Image of Jefferson Image of Jefferson Image of Jefferson Image of Jefferson Image of Jefferson

Floor plan

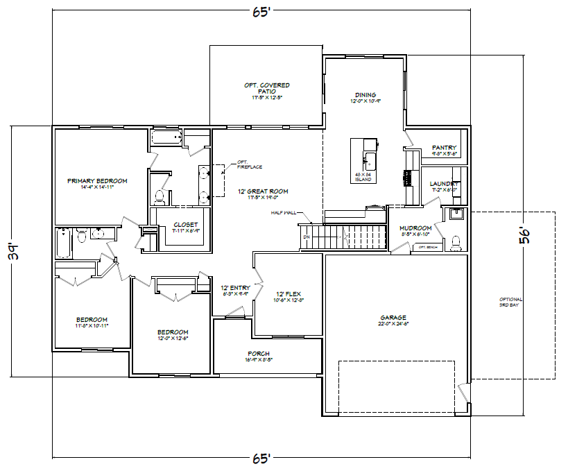
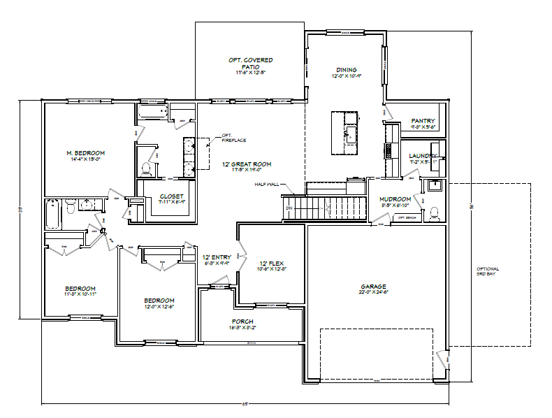
Main Floor – 2031 sq. ft.

Home design preview image

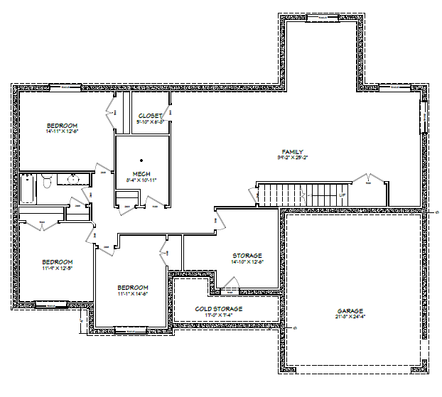
Basement – 2134 sq. ft.

Home design preview image
Total home square footage icon

4165

Total

Sq. Ft.

Total home square footage icon

2031

Main

Sq. Ft.

Total home square footage icon

6.0

Bed

Total home square footage icon

3.5

Bath

Home number of garages icon

2

Garage

About the Jefferson

The Jefferson floorplan is a spacious and functional single-level home designed for comfort, convenience, and style. Step through the covered porch into a welcoming entryway that flows into a flexible room-perfect as a home office, den, or additional living space. At the heart of the home, a bright great room with soaring 12' ceilings offers plenty of natural light and an optional fireplace for added warmth. The open-concept design connects seamlessly to the dining area and a well-appointed kitchen featuring a large center island and walk-in pantry. A nearby mudroom and laundry room keep the home organized and efficient. The primary suite is a true retreat, featuring a large bedroom, a spa-inspired bathroom with dual sinks, and a walk-in closet. Two additional bedrooms are located on the opposite the primary suite, each with convenient access to a full bath. Enjoy the outdoors on the optional covered patio, perfect for entertaining or relaxing in any season. This home also comes with a fully finished basement. The basement adds 3 bedrooms, 1 bathroom, a large family room, large storage rooms, and a cold storage room. The spacious 2-car garage with an optional 3rd bay allows for additional storage or vehicles. Call and start customizing your dream home today! About us – At Red Clover Homes we are a locally owned homebuilder based in Cache Valley, Utah, committed to crafting high-quality, energy-efficient homes with integrity, transparency, and care. Whether you're looking for a thoughtfully designed floor plan or a fully custom build, we guide you through every step of the process to ensure a smooth and rewarding experience. With a focus on lasting craftsmanship and community-minded design, our homes are built to reflect unique lifestyles and values of everyone. At Red Clover Homes, we don’t just build houses—we build homes designed for life.

Communities with this floor plan

Want to learn more about the Jefferson?

Fill out this form and we'll reach out to you asap.