Main image of Huntington, a home-design built by Red Clover Homes

Huntington

Rambler

Home asking price icon

4037 Sq. Ft.

Home asking price icon

3.5 bath

Home asking price icon

6.0 bed

Image of Huntington Image of Huntington Image of Huntington Image of Huntington Image of Huntington Image of Huntington Image of Huntington Image of Huntington Image of Huntington

Floor plan

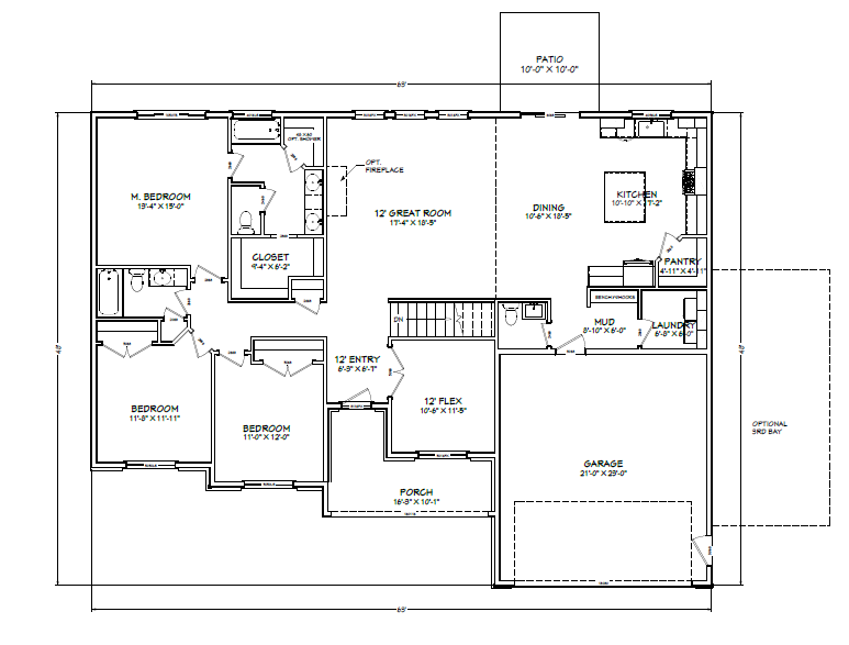
Main Floor – 1930 sq. ft.

Home design preview image

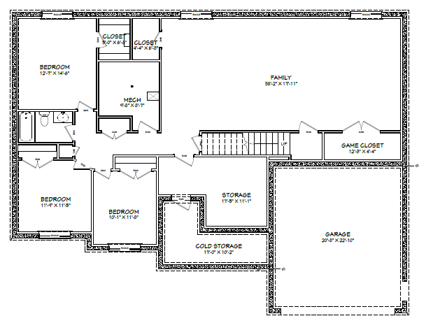
Basement – 2107 sq. ft.

Home design preview image
Total home square footage icon

4037

Total

Sq. Ft.

Total home square footage icon

1930

Main

Sq. Ft.

Total home square footage icon

6.0

Bed

Total home square footage icon

3.5

Bath

Home number of garages icon

2

Garage

About the Huntington

The Huntington floorplan makes single-level living both stylish and practical with its balance of open gathering spaces, flexible rooms, and private retreats. The Huntington is designed with families in mind. A covered front porch opens to a welcoming 12' entry, flanked by a versatile flex room that's perfect as an office, playroom, or guest space. At the heart of the home is a vaulted great room with 12' ceilings that flows seamlessly into the dining area and gourmet kitchen. The kitchen features a large island, walk-in pantry, and direct access to the patio for indoor-outdoor entertaining. The private primary bedroom includes a spa-like ensuite with dual sinks, soaking tub, walk-in shower, and a large walk-in closet. Two additional bedrooms are located near a full bathroom, giving kids and guests their own space. A mudroom, laundry room, and extra half bath are thoughtfully placed near the garage entrance. This home also comes with a fully finished basement. The basement adds 3 bedrooms, 1 bathroom, large family room, game closet, multiple storage closets, and a large cold storage room. A generous 2-car garage with an optional 3rd bay provides ample space for vehicles, storage, or hobbies. Call and start customizing your dream home today! About us – At Red Clover Homes we are a locally owned homebuilder based in Cache Valley, Utah, committed to crafting high-quality, energy-efficient homes with integrity, transparency, and care. Whether you're looking for a thoughtfully designed floor plan or a fully custom build, we guide you through every step of the process to ensure a smooth and rewarding experience. With a focus on lasting craftsmanship and community-minded design, our homes are built to reflect unique lifestyles and values of everyone. At Red Clover Homes, we don’t just build houses—we build homes designed for life.

Communities with this floor plan

Want to learn more about the Huntington?

Fill out this form and we'll reach out to you asap.